電梯井安全管理
一、電梯井防護安全管理
1. 電梯井施工前,必須根據各工程電梯井道設計特點(如電梯門洞尺寸、井道水平尺寸、層高等)編制電梯井安全專項施工方案,經項目技術負責人審核簽字,項目總監審批簽字同意后實施。
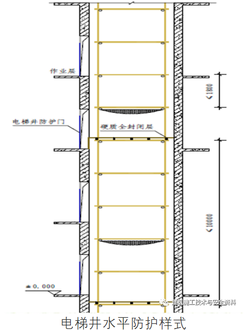
2.電梯井門洞口安裝大于1.5m的立式鋼筋防護門,宜使用工具式防護門。防護門底部踢腳板不低于 180mm,防護門外側張掛“當心墜落”安全警示標志牌,上部設警示燈。防護門必須固定。在施工層張掛水平網,施工層以下每兩層不大于10m設置一道水平防護。



3.電梯井施工操作架(平臺)應采用型鋼作為基座,并安全可靠地設置在結構上,操作架(平臺)嚴禁采用鋼管懸挑或將鋼管、木枋作為主要受力構件制作成操作架(平臺)的基座或基礎。
4.電梯井施工操作架(平臺)搭設安裝完畢后,應當經施工單位項目技術負責人及專業監理工程師驗收合格后方可使用。
5.電梯井操作架(平臺)應由使用班組、項目施工員、安全員進行日常檢查、維護,發現隱患及時消除。電梯井道內的防護安全網不得隨意拆除,待安裝電梯搭設腳手架時,每搭到安全網高度時方可拆除。因施工需要臨時拆除電梯井門洞口防護、電梯井道內防護的,需經項目安全管理負責人審核批準,工作過程中有人值守并設置標志,當日工作完畢應原樣恢復。
6.電梯井操作架(平臺)使用完畢后,在操作架(平臺)拆除前應將架體(平臺)內及型鋼封閉面上的施工材料、建筑垃圾全面清理干凈。
7.電梯井操作架(平臺)拆除作業必須遵循外腳手架相關施工要求,由上而下逐層進行,嚴禁上下同時作業,拆除的鋼管、扣件、腳手板等須妥善運出電梯井道,禁止亂扔亂拋;電梯井操作架(平臺)搭設(安裝)和拆除時,項目安全員必須在場監管。
二、電梯井防護的幾種類型
1. 電梯井內腳手架
10層以下采用落地式雙排腳手架,10層以上采用懸挑架。


2.支架式電梯井操作平臺
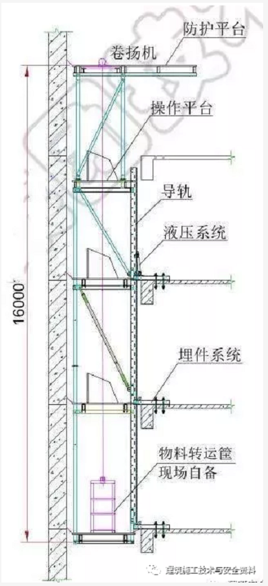
采用兩榀三角支架,用橫向支撐組裝操作平臺架體。電梯井三角鋼平臺下部 L 型支腿卡到施工層下一層樓板面,寬度與電梯門洞一致,上部操作平臺卡到剪力墻預留的牛腿槽鋼上,采用木楔固定,形成穩定的支撐平臺。在平臺架體焊接固定鋼板,用扁鋼壓條和螺栓將木架板與角鋼支座緊固為一體,架體底部綁扎兜底安全網,形成工具式操作平臺。

3. 支腿自翻轉式電梯井操作平臺
自翻牛腿電梯井道平臺采用槽鋼及鋼板加工定制而成,兩側設置帶有滑輪的可自動翻動支腿,利用塔吊提升吊運時,支腿自動伸開,支撐在電梯井筒壁事先預留的凹槽內,實現了平臺提升安裝就位時的自動化,避免了人工在平臺上的操作,降低了安全隱患,提高了施工效率。



4. 挑耳式電梯井操作平臺
平臺基本結構與自翻牛腿電梯井道平臺相似,利用塔吊吊運,平臺板上伸出挑耳支撐事先在電梯井筒壁的凹槽內,人工操作鎖死插銷軸,形成電梯井施工平臺。



